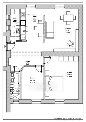
Appartamento in affitto Piazza Epiro 12, Roma
Salva
Casa.it
1/25
  • Street View
  • Map