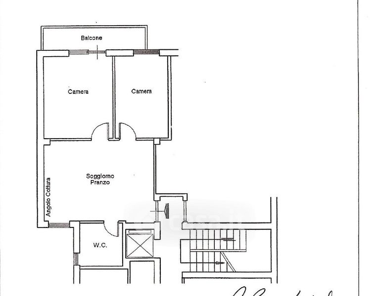
Appartamento in vendita Via Giuseppe Macchi , Roma
Salva
Casa.it
1/18
  • Street View
  • Map