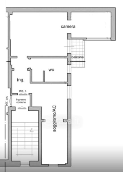
Appartamento in vendita Via Giuseppe Prinotti 24, Roma
Salva
Casa.it
1/2
  • Street View
  • Map