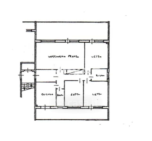
Appartamento in vendita Via Raimondo Scintu 58, Roma
Salva
Casa.it
1/35
  • Street View
  • Map