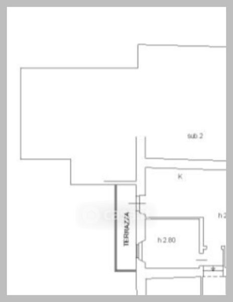
Appartamento in vendita Via dei Mazzanti , Roma
Salva
Casa.it
1/32
  • Street View
  • Map