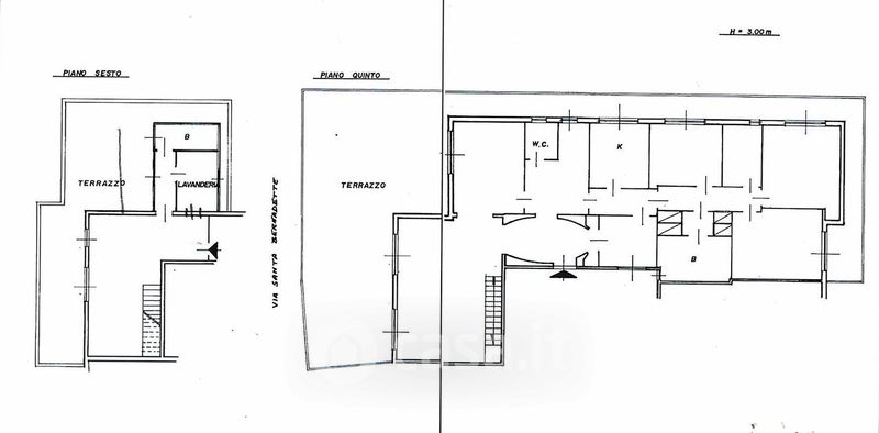
Appartamento in vendita Via Santa Bernadette , Roma
Salva
Casa.it
1/82
  • Street View
  • Map