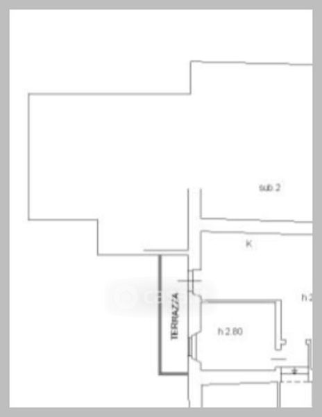
Appartamento in vendita Via Santa Cristina Gela , Roma
Salva
Contatta l'inserzionista
Casa.it