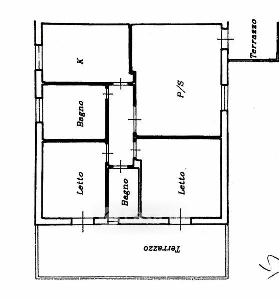
Appartamento in vendita Via Sabaudia 114, San Felice Circeo
Salva
Casa.it
1/37
  • Street View
  • Map