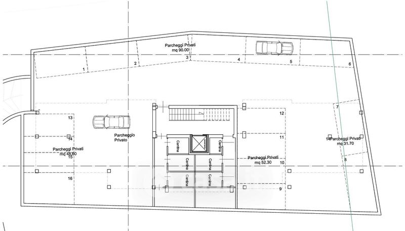
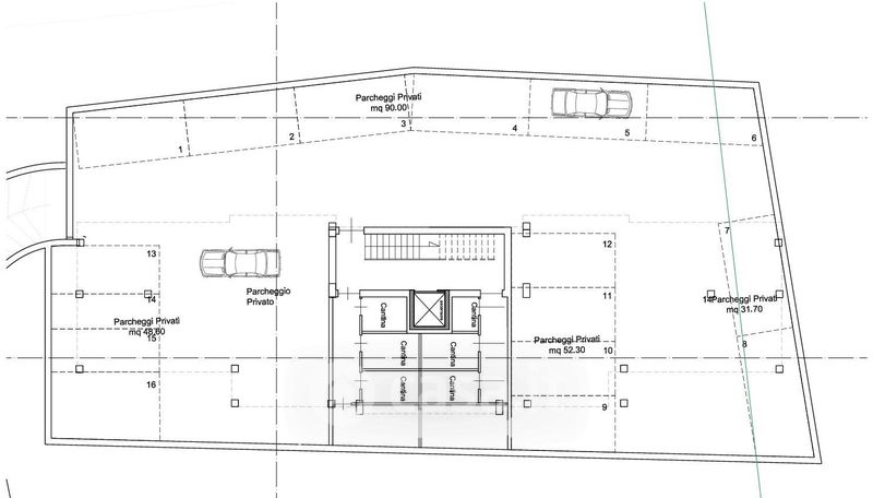
Appartamento in vendita Via Cicerone , Santa Marinella
Salva
Casa.it
1/24
  • Street View
  • Map