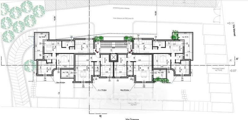
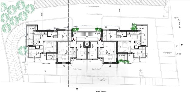
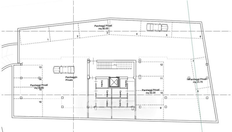
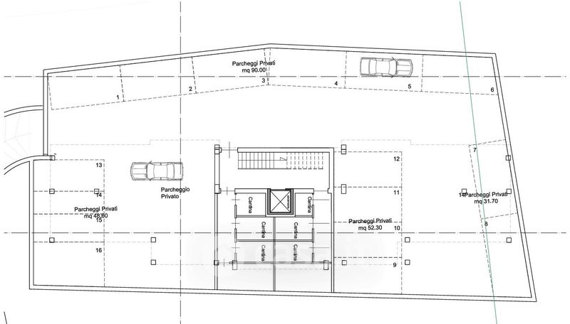
Appartamento in vendita Via Cicerone , Santa Marinella
Salva
Casa.it
1/22
  • Street View
  • Map