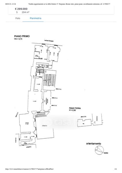
Appartamento in vendita Via dello Statuto 37, Tarquinia
Salva
Casa.it
1/33
  • Street View
  • Map