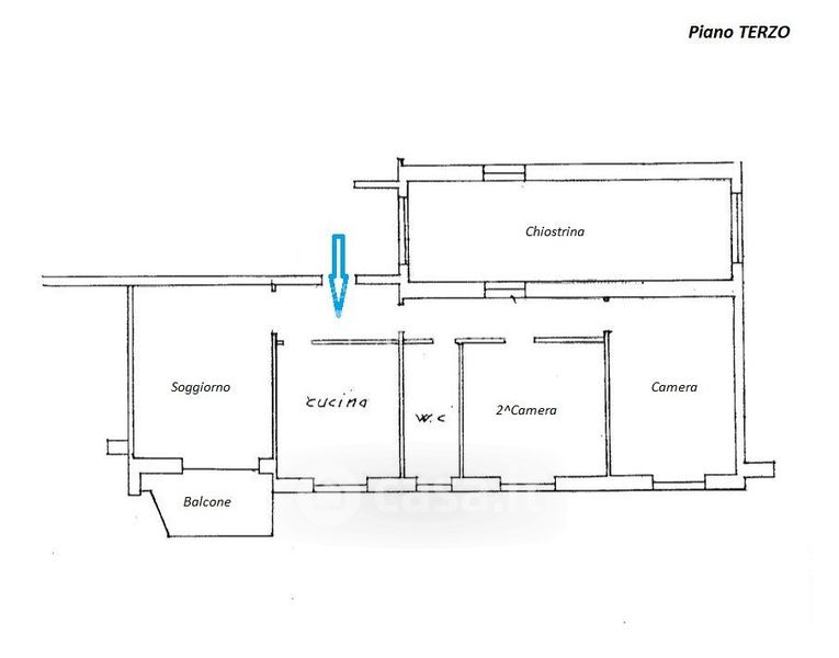
Appartamento in vendita Via Traiano 8, Terracina
Salva
Casa.it
1/19
  • Street View
  • Map