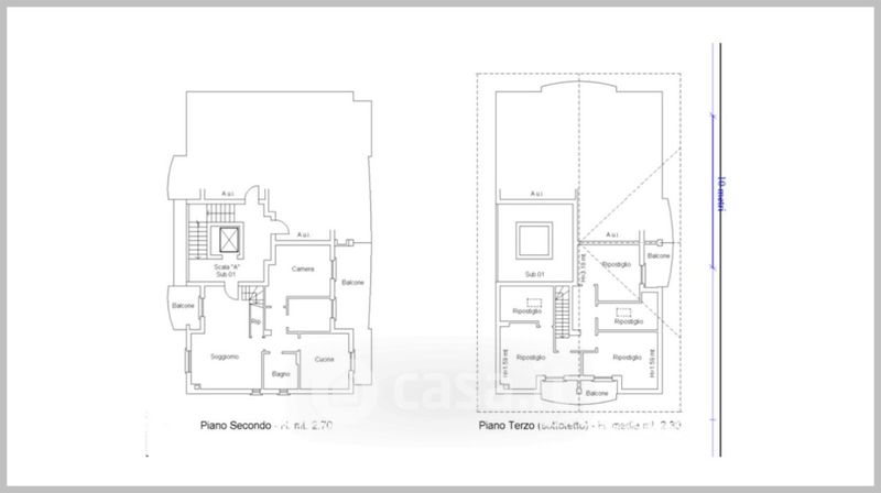
Appartamento in vendita Via Ugo Ferroni , Viterbo
Salva
Casa.it
1/32
  • Street View
  • Map