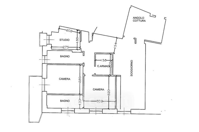
Appartamento in vendita Corso Europa 50, Alassio
Salva
Casa.it
1/27
  • Street View
  • Map