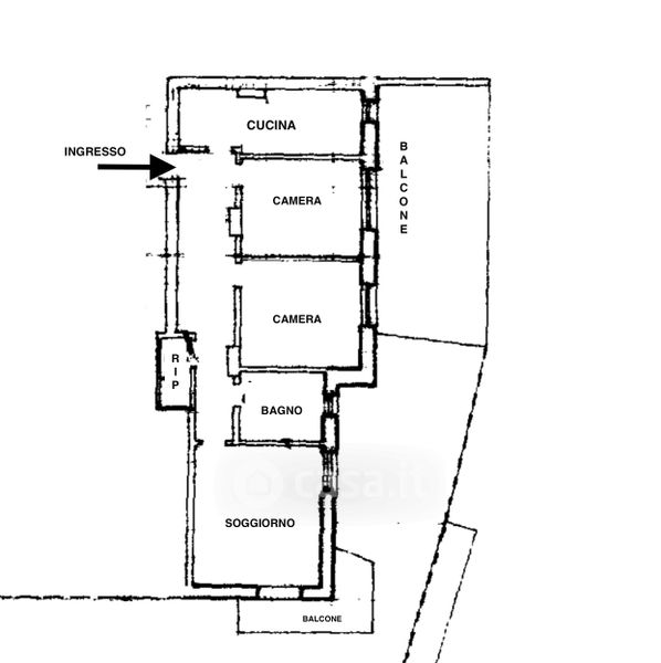
Appartamento in vendita Via Privata Neghelli 10, Alassio
Salva
Casa.it
1/32
  • Street View
  • Map