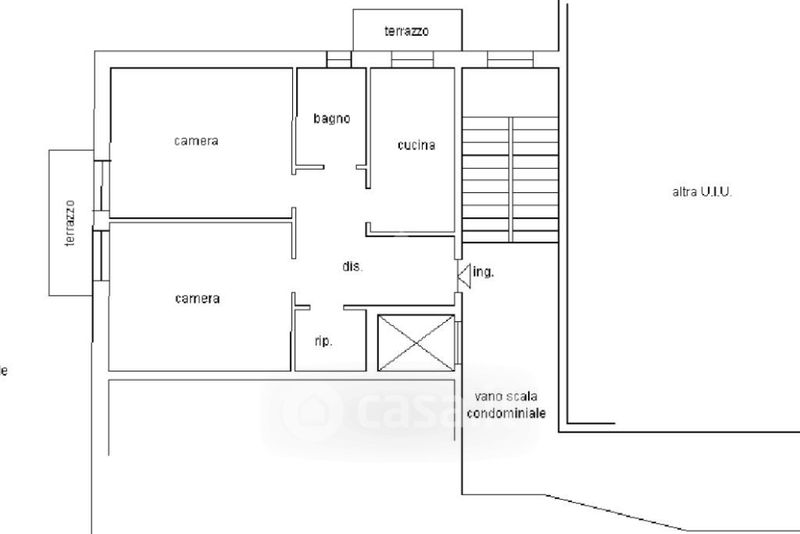
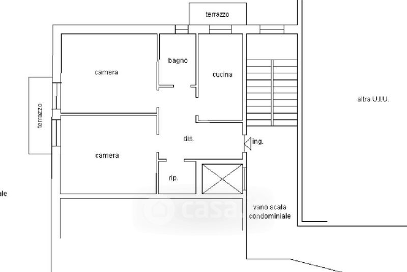
Appartamento in affitto Via Mulino del Ponte 18, Alassio
Salva
Casa.it
1/18
  • Street View
  • Map