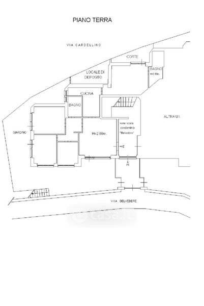
Appartamento in vendita Via Cardellino 51, Alassio
Salva
Casa.it
1/17
  • Street View
  • Map