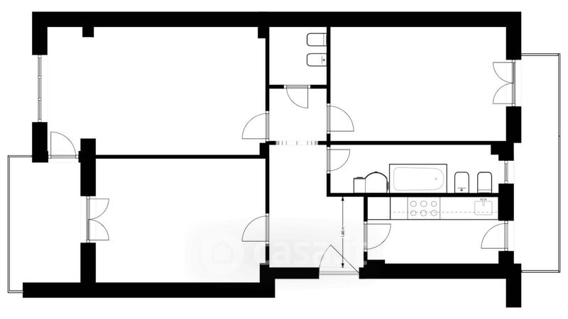
Appartamento in vendita Via Privata San Pancrazio 8, Alassio
Salva
Casa.it
1/74
  • Street View
  • Map