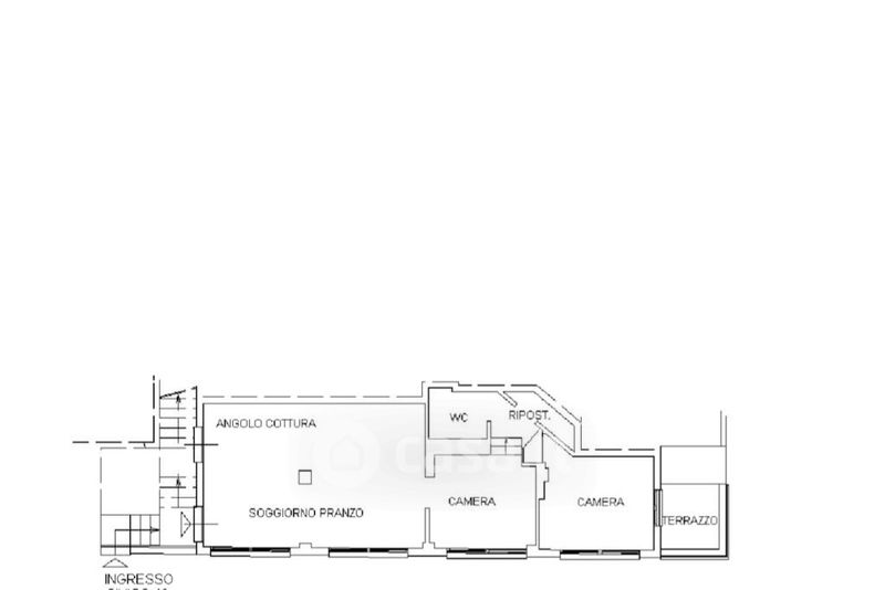
Appartamento in vendita Via Rangè 35, Alassio
Salva
Casa.it
1/23
  • Street View
  • Map