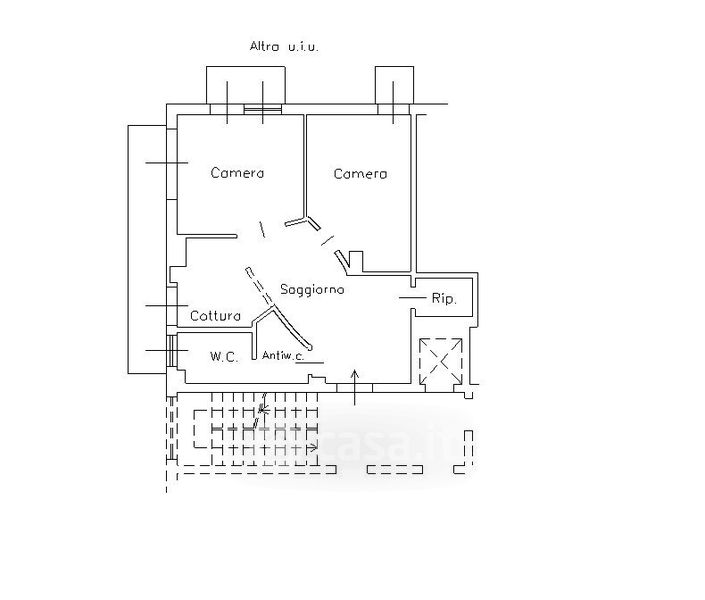
Appartamento in vendita Via P. Ferreri 27, Alassio
Salva
Casa.it
1/20
  • Street View
  • Map