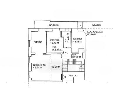
Appartamento in vendita Viale Martiri della Libertà , Albenga
Salva
Casa.it
1/45
  • Street View
  • Map