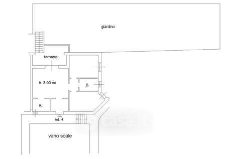
Appartamento in vendita Via del Quadrifoglio 8, Arenzano
Salva
Casa.it
1/32
  • Street View
  • Map