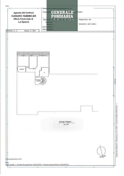
Appartamento in vendita Via Genova 171, Bolano
Salva
Casa.it
1/39
  • Street View
  • Map