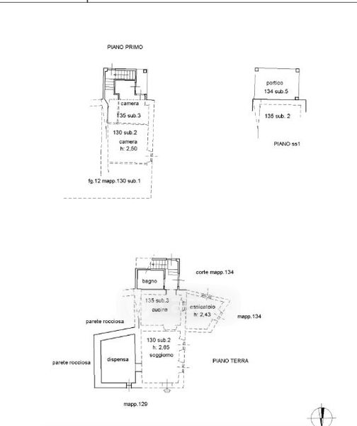
Appartamento in vendita Località Santa Maria 66, Calice al Cornoviglio
Salva
Casa.it
1/48
  • Street View
  • Map