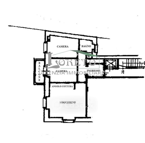
Appartamento in vendita Piazza Simone Schiaffino , Camogli
Salva
Casa.it
1/26
  • Street View
  • Map