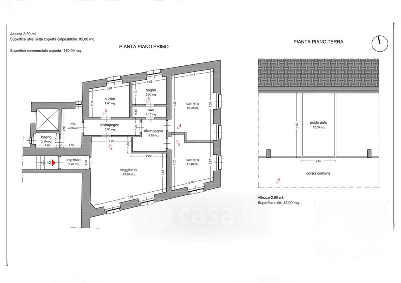
Appartamento in vendita Via Venticinque Aprile 20, Camogli
Salva
Casa.it
1/54
  • Street View
  • Map