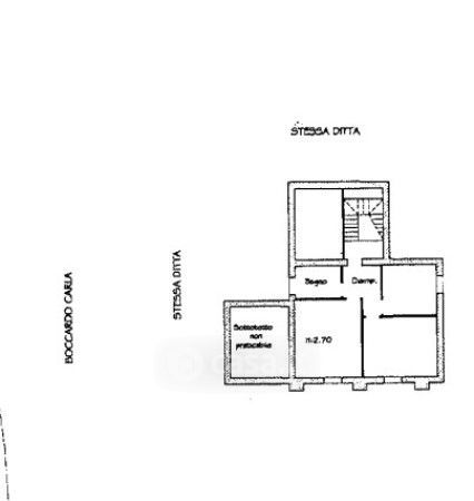
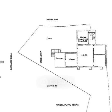
Appartamento in vendita Via Sotto la Chiesa 6, Campomorone
Salva
Casa.it
1/22
  • Street View
  • Map