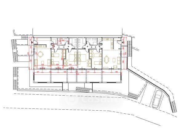
Appartamento in vendita Via Barletti , Casarza Ligure
Salva
Casa.it
1/6
  • Street View
  • Map