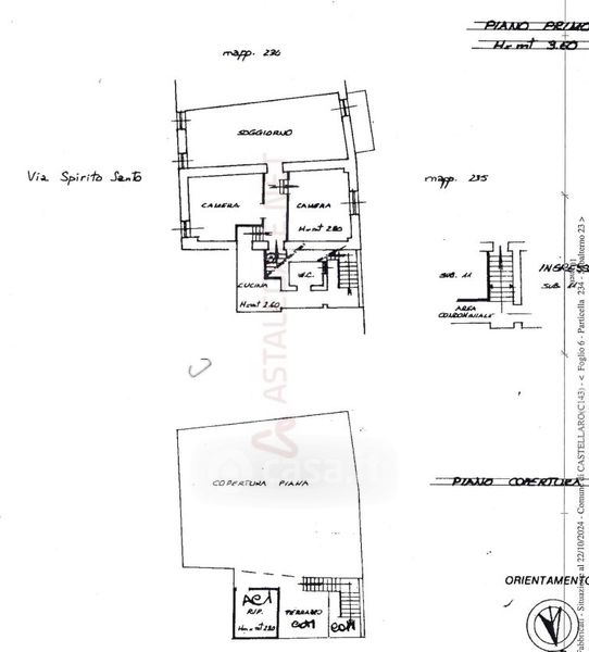
Appartamento in vendita Via Spirito Santo , Castellaro
Salva
Casa.it
1/37
  • Street View
  • Map