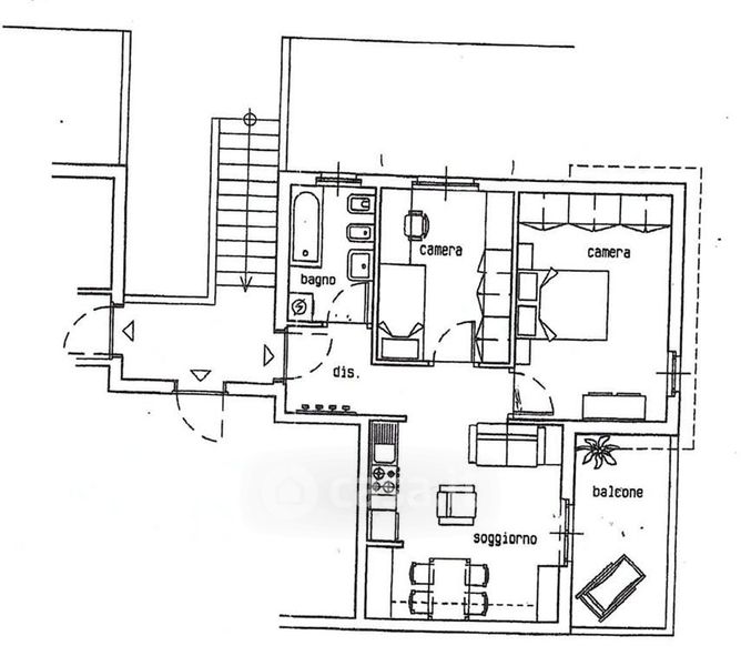
Appartamento in vendita Strada per i Piani , Castellaro
Salva
Casa.it
1/12
  • Street View
  • Map