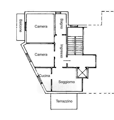
Appartamento in vendita Via Sanda , Celle Ligure
Salva
Casa.it
1/25
  • Street View
  • Map