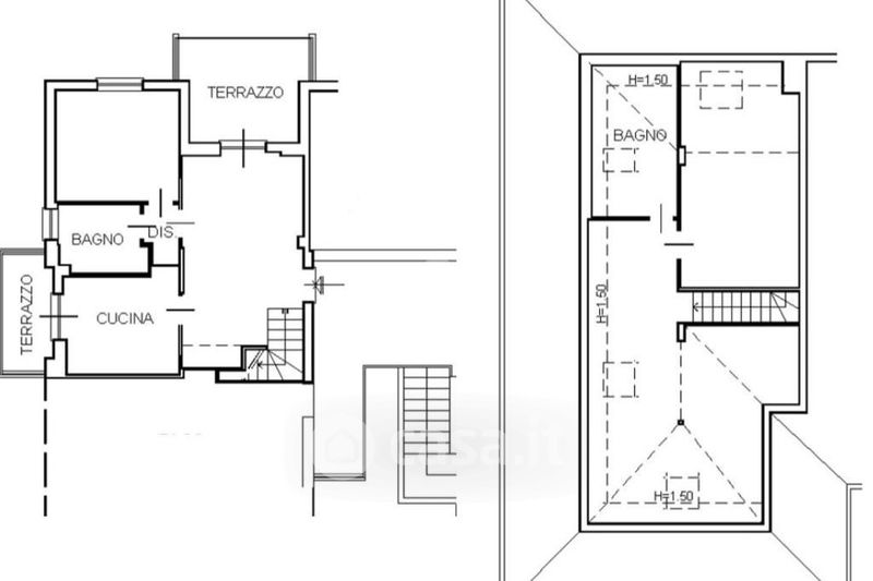
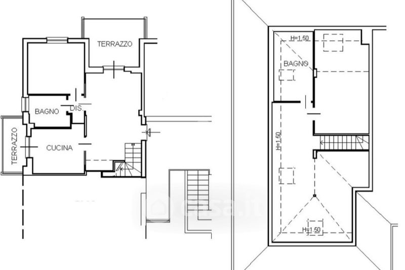
Appartamento in vendita Via Piacenza 180, Chiavari
Salva
Casa.it
1/42
  • Street View
  • Map