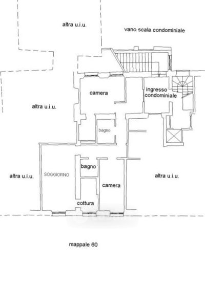
Appartamento in vendita Via Torino 61, Finale Ligure
Salva
Casa.it
1/34
  • Street View
  • Map