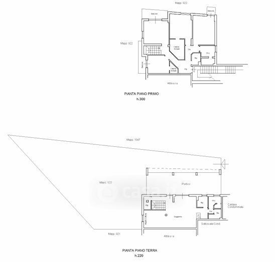
Appartamento in vendita Via Brigate Partigiane 195, Follo
Salva
Casa.it
1/27
  • Street View
  • Map