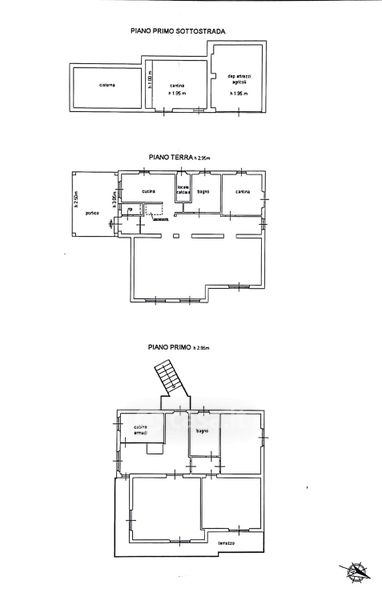
Appartamento in vendita Via Piana 54, Follo
Salva
Casa.it
1/22
  • Street View
  • Map