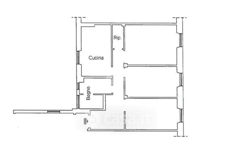
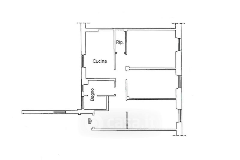
Appartamento in vendita Via del Piano 1, Genova
Salva
Casa.it
1/35
  • Street View
  • Map