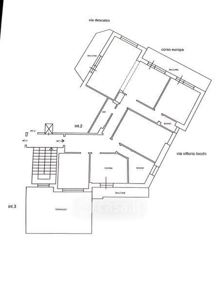
Appartamento in vendita Via Giovanni Descalzo 2, Genova
Salva
Casa.it
1/27
  • Street View
  • Map