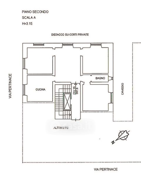
Appartamento in vendita Via Pertinace 15, Genova
Salva
Casa.it
1/17
  • Street View
  • Map