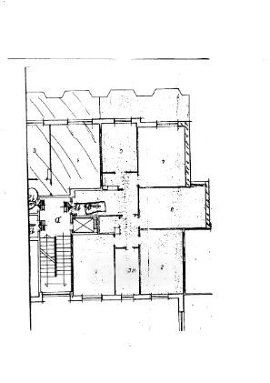
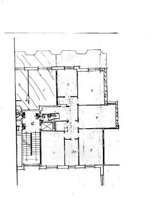
Appartamento in vendita Piazzale Giardino Fiorito , Genova
Salva
Casa.it
1/27
  • Street View
  • Map