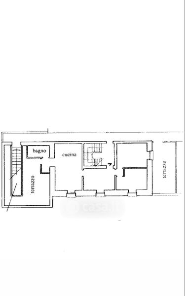
Appartamento in vendita Via Sampierdarena 43, Genova
Salva
Casa.it
1/29
  • Street View
  • Map