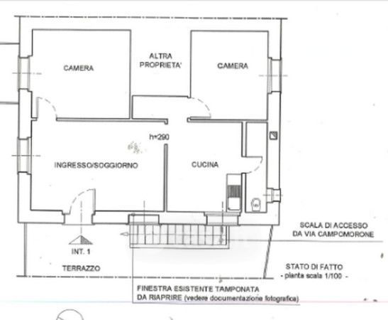
Appartamento in vendita Via Campomorone 50, Genova
Salva
Casa.it
1/19
  • Street View
  • Map