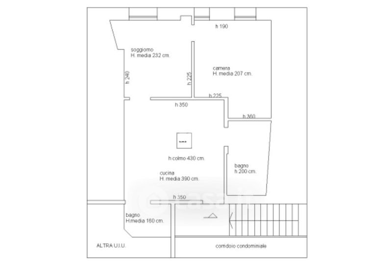
Appartamento in vendita Piazza Cavour 4, Genova
Salva
Casa.it
1/26
  • Street View
  • Map