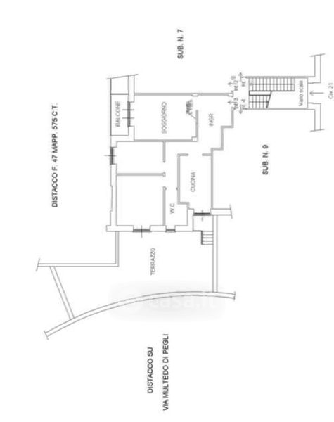
Appartamento in vendita Via Multedo di Pegli 21, Genova
Salva
Casa.it
1/15
  • Street View
  • Map