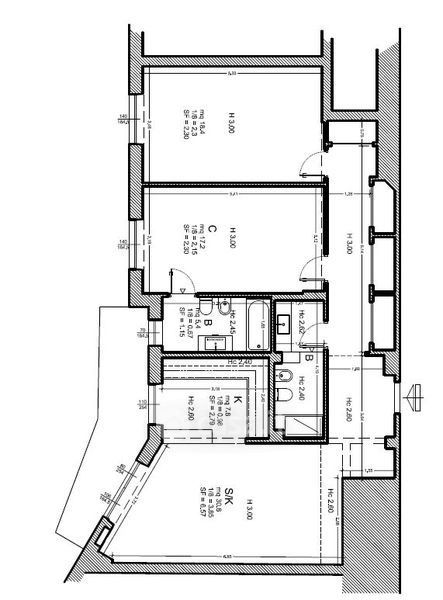
Appartamento in vendita Via Flavia Steno 11, Genova
Salva
Casa.it
1/45
  • Street View
  • Map