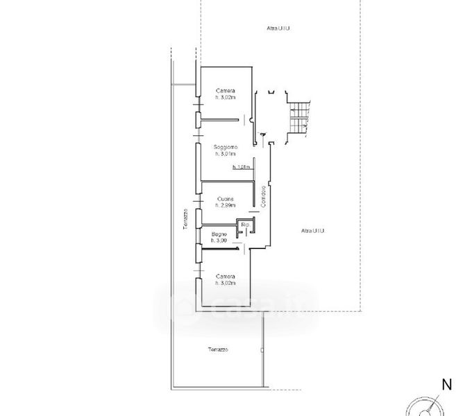
Appartamento in vendita Via alla Chiesa di San Giorgio di Bavari 21, Genova
Salva
Casa.it
1/27
  • Street View
  • Map