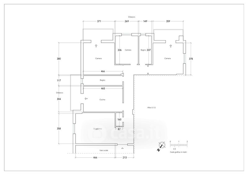
Appartamento in vendita Via Percy Bysshe Shelley 59, Genova
Salva
Casa.it
1/65
  • Street View
  • Map