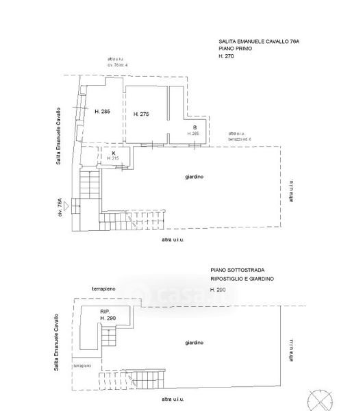
Appartamento in affitto Salita Emanuele Cavallo 76 A, Genova
Salva
Casa.it
1/20
  • Street View
  • Map