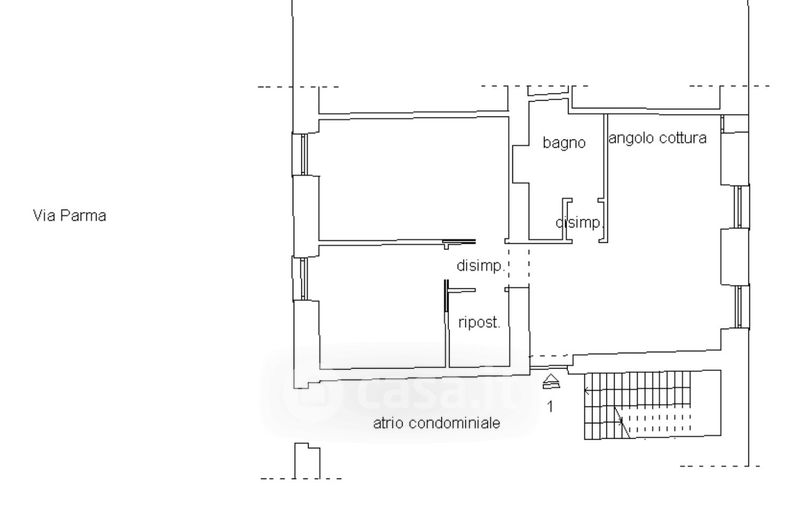
Appartamento in vendita Via Parma , Genova
Salva
Casa.it
1/23
  • Street View
  • Map