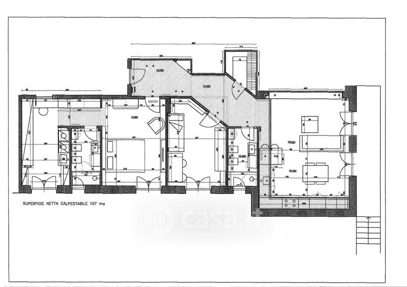
Appartamento in vendita Via Bartolomeo Carrea , Genova
Salva
Casa.it
1/50
  • Street View
  • Map