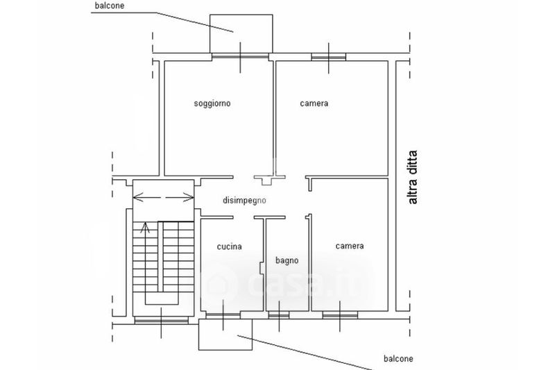
Appartamento in vendita Scalinata Arturo Toscanini 10, La Spezia
Salva
Casa.it
1/33
  • Street View
  • Map